
【成約済み】 ※査定・売却のご依頼はページ中央から
| 物件名 | グリーンシティ弥生 |
|---|---|
| 物件種別 | 中古マンション |
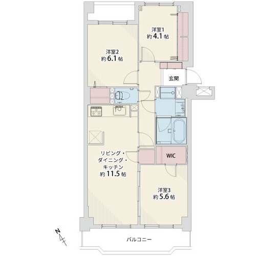
| 間取り | 3LDK |
| 総戸数 | 25 |
| 所在地 | 愛知県名古屋市南区弥生町198 |
| 交通 | 名鉄名古屋本線「本笠寺」駅徒歩10分 名古屋市営地下鉄桜通線「鶴里」駅徒歩12分 |
| 専有面積 | 77.01㎡ |
| バルコニー面積 | 9.6㎡ |
| 築年月 | 1973年9月 |
名鉄名古屋本線「本笠寺」駅から徒歩で10分、南区戸部町のグリーンシティ弥生(2階)をご紹介。
さて、こちらのマンション、中古であるものの、キッチン(システムキッチン 食洗機付:W2400、カウンター) 浴室(ユニットバス 追焚・浴室乾燥機付:1416) 洗面室(洗面化粧台、洗濯用水栓、洗濯パン) トイレ(温水洗浄便座、便器本体) その他(玄関収納、建具、照明器具、分電盤、スイッチコンセント、給湯器、レースカーテン) 床:フローリング貼(LDK、洋室全室、廊下) フロアタイル貼(玄関、洗面室、トイレ) 壁・天井:クロス貼 ハウスクリーニング 実施と至れり尽くせりのリフォーム済みです。
ご案内は夜9時まで対応しておりますので、お仕事帰りにご覧になりたい方も、お気軽にお問合せください。
| 所在階 | 2 |
|---|---|
| 構造 | RC造 地上5階 |
| 管理費 | 9,000円 |
| 修繕積立金 | 19,200円 |
| 引渡可能時期 | 即入居可 |
| 向き | 南西 |
| 小学校 | 春日野小学校 |
| 中学校 | 桜田中学校 |
| 管理会社 | 日本ハウズイング株式会社 |
| 管理形態 | 全部委託 |
| 設備詳細 | 照明器具 システムキッチン 食器洗機 洗浄便座 洗濯機置場 カウンターキッチン LDK15帖以上 フローリング 全室フローリング 火災警報器(報知機) 洗面所独立 浴室乾燥機 給湯 収納 各室収納スペース バルコニー エレベーター 陽当り良好 管理人巡回 複数路線利用可 即入居可 |
| 制限事項 | ペット:不可 ※駐車場:8000円/月 ※駐輪場:フリースペース200円/月 ※バイク置場:フリースペース500円/月 公民会費:2,400円/年 |
| ペット | 不可 |
| 土地権利 | 所有権 |
| 取引態様 | 仲介 |
この物件は成約済みとなりました
希望条件を教えていただければ未公開物件も含めて物件を探します。
物件の売却をご希望の方もこちらからお問い合わせください。
見学予約・資料請求はこちら
この物件を見た人は、こんな物件も見ています
不動産購入に役立つ情報
プロの目線で住宅購入に必要な情報をまとめました。
























































